Située à Marmora, dans les Alpes italiennes, cette ancienne ferme de montagne a fait l’objet d’une rénovation complète afin de lui redonner vie tout en respectant son caractère d’origine et son intégration dans le paysage montagnard.
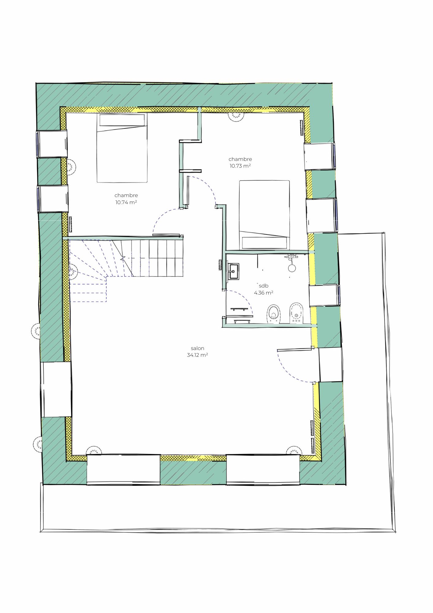
La maison s’organise sur trois niveaux. Le niveau d’accès accueille les espaces de vie avec salon, cuisine, buanderie, local à skis, salle d’eau et une chambre en mezzanine. Le niveau inférieur est dédié à l’espace nuit, avec deux chambres, un salon attenant et une salle d’eau. Une cave, située au troisième niveau, offre un potentiel d’aménagement ultérieur.
Le projet intègre la création de deux grandes baies vitrées ouvertes sur la vallée et la réalisation d’un toit en lauzes en cohérence avec l’architecture locale. Une attention particulière a été portée au respect du bâti ancien et à la qualité d’exécution, en collaboration avec des artisans au savoir-faire remarquable.
Nous utilisons des cookies pour vous garantir la meilleure expérience sur notre site web. Si vous continuez à utiliser ce site, nous supposerons que vous en êtes satisfait.