SERVICES
PLANS SUR MESURE
Pour des maisons de moins de 150m²
Je conçois des plans personnalisés qui s’adaptent à vos envies, votre budget et la configuration de votre terrain. Chaque projet est unique et mérite une attention particulière.
Ce qui est inclus :
- Plans 2D et 3D détaillés
- Implantation optimale sur le terrain
- Optimisation des espaces de vie
- Respect des normes en vigueur (PLU, RE2020)
- Études de faisabilité
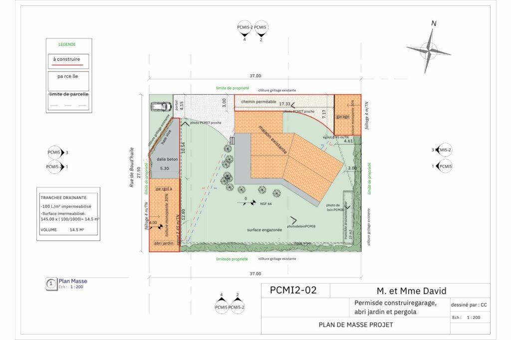
PERMIS DE CONSTRUIRE
Montage complet de votre dossier
Je prends en charge l’intégralité du dossier de permis de construire, de la constitution des documents à leur dépôt en mairie. Vous gagnez du temps et vous vous assurez de la conformité de votre dossier.
Ce qui est inclus :
- Plans réglementaires (situation, masse, coupes, façades)
- Notice descriptive du projet
- Photos et insertion paysagère
- Formulaires Cerfa complétés
- Suivi du dossier en mairie
DECLARATION DE TRAVAUX
Pour extensions et modifications
Pour les travaux créant de la surface de plancher ou d’emprise au sol, modifiant l’aspect extérieur ou aménageant l’intérieur/extérieur de votre habitation, je constitue votre déclaration préalable conforme aux exigences réglementaires.
Projets concernés :
- Extensions jusqu’à 20m²
- Surélévations
- Création d’ouvertures (fenêtres, portes)
- Aménagement de combles
- Modifications de façade
- Création de terrasses
ETUDE D'ENSOLEILLEMENT
Optimisez votre confort et vos économies
J’analyse l’orientation et l’ensoleillement de votre projet pour maximiser les apports naturels de lumière et de chaleur. Je veille également au respect des normes thermiques actuelles (RE2020) pour garantir les meilleures performances énergétiques.
Bénéfices :
- Réduction significative des coûts de chauffage et climatisation
- Meilleur confort thermique été comme hiver
- Optimisation de la luminosité naturelle
- Valorisation de votre bien immobilier
- Respect des réglementations environnementales
PROJET DE PISCINE
De l’idée à la réalisation
Conception sur mesure de votre espace piscine avec accompagnement complet dans les démarches administratives. Selon les dimensions de votre projet, je constitue soit une déclaration préalable, soit un permis de construire.
Ce qui est inclus :
- Plans d’implantation optimale
- Intégration paysagère
- Respect des règles de sécurité (barrières, alarmes)
- Dossier administratif complet
- Conseil sur le type de piscine adapté à votre terrain
AMENAGEMENT INTERIEUR
Repensez vos espaces de vie
Que ce soit pour redistribuer les pièces, créer une ouverture, optimiser l’agencement ou moderniser votre intérieur, je vous propose des plans adaptés à l’existant et à vos nouveaux besoins de vie.
Projets types :
- Création de cuisine ouverte
- Suite parentale avec salle de bain
- Aménagement et isolation de combles
- Réorganisation des espaces (abattre/créer des cloisons)
- Optimisation des rangements
- Accessibilité PMR (personnes à mobilité réduite)
PRÊT A DÉMARRER VOTRE PROJET ?
Contactez-moi pour un premier échange gratuit et sans engagement
FOIRE AUX QUESTIONS
Combien coûtent vos services ?
Les tarifs varient selon la complexité et l’étendue de votre projet. Je propose un premier rendez-vous pour évaluer vos besoins et vous établir un devis personnalisé. N’hésitez pas à me contacter pour en discuter.
Combien de temps prend le montage d'un permis de construire ?
En moyenne, la constitution du dossier prend 2 à 4 semaines selon la complexité du projet. L’instruction en mairie dure ensuite 2 mois pour une maison individuelle.
Intervenez-vous en dehors de Pujaut ?
Oui, j’interviens dans un rayon de 30km autour de Pujaut, incluant notamment Avignon, Villeneuve-lès-Avignon, Bagnols-sur-Cèze et Orange. Pour les communes plus éloignées, contactez-moi pour étudier la faisabilité.
Proposez-vous des plans pour des surfaces supérieures à 150m² ?
Ma spécialité concerne les projets de moins de 150m². Pour les surfaces supérieures, je peux vous orienter vers des architectes partenaires.
Dois-je déjà avoir trouvé un entrepreneur ?
Non, je peux intervenir dès la phase de conception, avant même que vous ayez choisi vos entreprises. Des plans supplémentaires serviront à consulter différents professionnels.
Gérez-vous aussi les démarches après l'obtention du permis ?
Je m’occupe de la constitution et du dépôt du dossier. Pour le suivi de chantier, je peux vous accompagner en option ou vous orienter vers des professionnels adaptés.
Combien de temps faut-il prévoir pour mon projet ?
- Plans sur mesure : 2 à 3 semaines
- Permis de construire : 3 à 4 semaines + 2 à 3 mois d’instruction
- Déclaration préalable : 2 semaines + 1 mois d’instruction
- Étude d’ensoleillement : 1 à 2 semaines
Puis-je modifier les plans en cours de conception ?
Il est possible de modifier les plans du moment que les changements n’exigent pas une réélaboration complète. L’objectif est que vous soyez pleinement satisfait du résultat.