Maison de famille située à Valleggia, en Italie, cette bâtisse a fait l’objet d’une rénovation complète afin de lui redonner son cachet d’origine tout en apportant confort et modernité. Les propriétaires souhaitaient préserver l’âme de cette ancienne maison tout en créant des espaces de vie plus ouverts et lumineux.
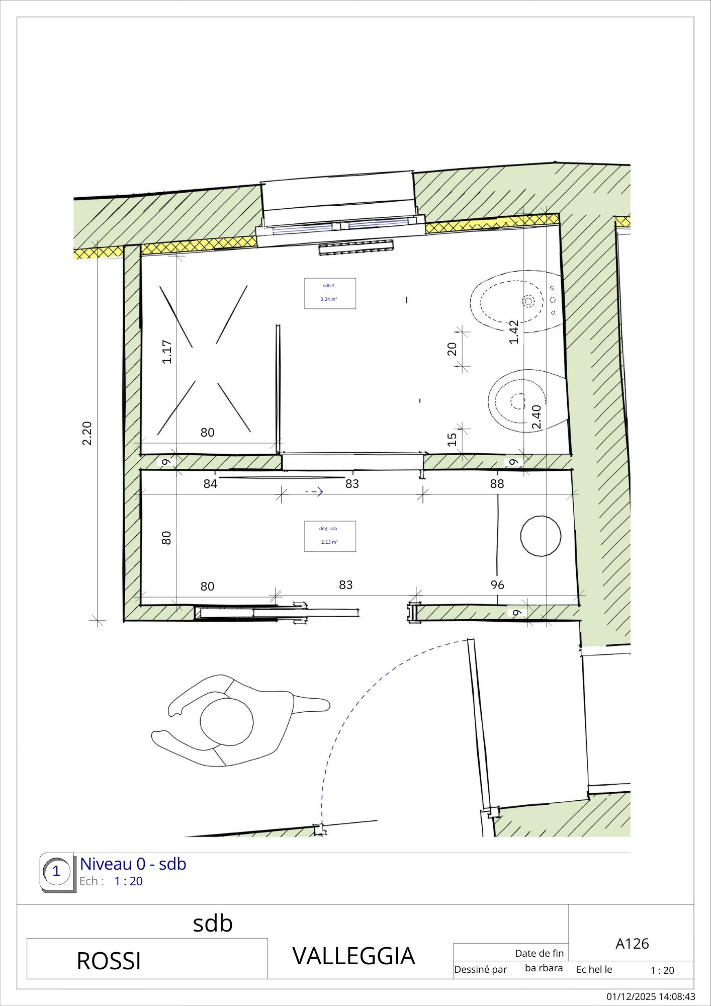
Les travaux ont notamment porté sur l’agrandissement du salon, désormais sublimé par un plafond voûté de grande hauteur, ainsi que sur la refonte complète de la cuisine et de la salle de bains dans un style plus contemporain. Cette restructuration d’envergure a permis d’allier fonctionnalité, modernité et respect du caractère unique du lieu.
L’aménagement d’une terrasse extérieure est également en cours. Projet toujours en réalisation — photos à venir.
Nous utilisons des cookies pour vous garantir la meilleure expérience sur notre site web. Si vous continuez à utiliser ce site, nous supposerons que vous en êtes satisfait.